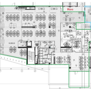
Аренда офиса площадью 894 кв.м.
Основные характеристики
- Площадь: 894 м²
- Стоимость аренды: 51 779 ₽ м² в год
- Этаж: 3 из 6
- НДС: Включая НДС
- Состояние: Готово к въезду
- Тип объекта: Офис
- Класс: A
- Окна: Окна
- Планировка: Смешанная
- Комунальные услуги: Оплачиваются по факту
- Тип сделки: Прямая аренда
- Вход: 0
Об оъекте
2012
год основания
6
этажей
A
класс офисов
Паркинг
Панорамные окна с шумоизоляцией
3 конференц-зала и переговорные
Бизнес-лаунж с кофейней
Гибкие планировки (от 30 м² до этажа)
Подземный паркинг
Панорамные окна с шумоизоляцией
3 конференц-зала и переговорные
Бизнес-лаунж с кофейней
Гибкие планировки (от 30 м² до этажа)
Подземный паркингТранспортная доступность
До центра (Кремль) – 15 минут без пробок
До МКАД:
По ТТК – 20 минут
По Ярославскому шоссе – 25 минут
10 минут на такси до Рижского вокзала
15 минут до Ярославского вокзала (аэроэкспресс в Шереметьево)
Рядом Олимпийский комплекс и парки.
Подземный паркинг на 120 машиномест.
Наземная гостевая парковка на 40 автомобилей.
2 минуты до Садового кольца
Метро «Проспект Мира» 3 минуты пешкомНа карте
Показывать объекты рядомПроложить маршрут
Фотогалерея
Скачать PDF с полной информацией об объекте
Нажимая на кнопку, Вы даете согласие на обработку, хранение и использование ваших персональных данных
Спасибо за заявку
Сейчас начнется скачивание каталога
Если скачивание не началось автоматически, кликните по этой ссылке


Олимпик Холл
Москва, пр-кт Олимпийский, 16 стр 5
Номер лота
44325
Метро
Проспект мира
880м
Достоевская
1100м
Район
894 м2
51 779 ₽ м² в год
3 857 536 ₽ в месяц
Редеве́лопмент
Перепрофилирование невостребованных в существующем состоянии объектов недвижимости или нерационально используемых территорий
Лофт объекты - или не обычный офис
Компания «Спринтхост» взяла в субаренду часть площадей группы «Самолет» в бизнес-центре ICON
Редеве́лопмент
Перепрофилирование невостребованных в существующем состоянии объектов недвижимости или нерационально используемых территорий












