Аренда офиса площадью 206 кв.м.
Основные характеристики
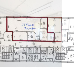
- Площадь: 206 м²
- Стоимость аренды: 31 000 ₽ м² в год
- Этаж: 18 из 18
- НДС: Включая НДС
- Состояние: Готово к въезду
- Тип объекта: Офис
- Класс: B
- Высота потолков: Неизвестно
- Планировка: Смешанная
- Комунальные услуги: Оплачиваются по факту
- Тип сделки: Прямая аренда
Об оъекте
«Меридиана» – это современный бизнес-центр с комфортными офисными помещениями и удобной логистикой. Подходит для компаний, которые ценят баланс между качеством и стоимостью аренды.
Панорамные окна с естественным освещением
4 конференц-зала и коворкинг-зона
Круглосуточная охрана с видеонаблюдением
Паркинг на 200 мест
Свободная планировка (от 20 м² до целых этажей)
Панорамные окна с естественным освещением
4 конференц-зала и коворкинг-зона
Круглосуточная охрана с видеонаблюдением
Паркинг на 200 мест
Свободная планировка (от 20 м² до целых этажей)Транспортная доступность
До центра (м. «Охотный Ряд») – 15 минут.
Пересадка на МЦК «Беговая» (1 мин пешком) – прямой доступ к деловым районам (Москва-Сити, Пресня).
10 минут до ж/д платформы «Беговая» (МЦД-1) – связь с областью и другими округами Москвы.
3 минуты до Третьего транспортного кольца (ТТК).
5 минут до Ленинградского проспекта.
До центра (Кремль) – 20 минут без пробок.
Станция «Беломорская» 3 минут пешком
До МКАД 20 минутНа карте
Показывать объекты рядомФотогалерея
Скачать PDF с полной информацией об объекте
Спасибо за заявку
Сейчас начнется скачивание каталога
Если скачивание не началось автоматически, кликните по этой ссылке












