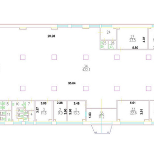
Аренда офиса площадью 822 кв.м.
Основные характеристики
- Площадь: 822 м²
- Стоимость аренды: 24 818 ₽ м² в год
- Этаж: 1 из 3
- НДС: УСН
- Состояние: Готово к въезду
- Тип объекта: Офис
- Класс: B
- Окна: Окна
- Планировка: Смешанная
- Комунальные услуги: Оплачиваются по факту
- Тип сделки: Прямая аренда
- Вход: С улицы
Об оъекте
2008
год основания
3
этажей
B
класс офисов
Паркинг
Высота потолков – 2,8-3,2 м
Планировки от 40 до 900 м²
Конференц-зал на 20 человек
Охраняемая парковка (35 машиномест)
Круглосуточная охрана
Высота потолков – 2,8-3,2 м
Планировки от 40 до 900 м²
Конференц-зал на 20 человек
Охраняемая парковка (35 машиномест)
Круглосуточная охранаТранспортная доступность
5 мин до Мясницкой улицы.
7 мин до ТТК.
Парковка:
Охраняемая наземная парковка на 35 мест,
Уличная парковка (платная, 100-150 ₽/час).
Метро «Алексеевская» 3 минуты пешком
3 минуты до Садового кольцаНа карте
Показывать объекты рядомПроложить маршрут
Фотогалерея
Скачать PDF с полной информацией об объекте
Нажимая на кнопку, Вы даете согласие на обработку, хранение и использование ваших персональных данных
Спасибо за заявку
Сейчас начнется скачивание каталога
Если скачивание не началось автоматически, кликните по этой ссылке


Графский 12А с1
Москва, пер Графский, 12А стр 1
Номер лота
59093
Метро
Алексеевская
700м
Рижская
800м
Район
822 м2
24 818 ₽ м² в год
1 700 033 ₽ в месяц
Редеве́лопмент
Перепрофилирование невостребованных в существующем состоянии объектов недвижимости или нерационально используемых территорий
Лофт объекты - или не обычный офис
Компания «Спринтхост» взяла в субаренду часть площадей группы «Самолет» в бизнес-центре ICON
Редеве́лопмент
Перепрофилирование невостребованных в существующем состоянии объектов недвижимости или нерационально используемых территорий












