Аренда офиса площадью 1206 кв.м.
Основные характеристики
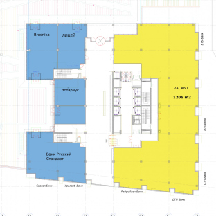
- Площадь: 1206 м²
- Стоимость аренды: 60 000 ₽ м² в год
- Этаж: 1 из 11
- НДС: Не включая НДС
- Состояние: Под отделку
- Тип объекта: Офис
- Класс: A
- Высота потолков: 5.6м
- Планировка: Смешанная
- Комунальные услуги: Оплачиваются по факту
- Тип сделки: Прямая аренда
- Налоговая: №43
Об оъекте
Бизнес-центр "Метрополис" (корпус 1) – это современный многофункциональный комплекс класса "А", расположенный в престижном районе на северо-западе Москвы.
2009год основания
11этажей
Aкласс офисов
Уникальная архитектура с атриумом и зимним садом
Собственный парк с зонами отдыха
Панорамное остекление с видами на Москву
Высокоскоростные лифты
Конференц-центр на 200 человек
Уникальная архитектура с атриумом и зимним садом
Собственный парк с зонами отдыха
Панорамное остекление с видами на Москву
Высокоскоростные лифты
Конференц-центр на 200 человекТранспортная доступность
Выезд на Ленинградское шоссе – 1 минута (направление: центр/область).
До ТТК – 5 минут (съезд на Волоколамский тоннель).
Парковка:
Подземная (650 мест для арендаторов).
Наземная (платная, по городским тарифам).
Метро «Войковская» 2 минуты пешком
До МКАД 10 минут на автоНа карте
Показывать объекты рядомПроложить маршрут
Фотогалерея
Скачать PDF с полной информацией об объекте
Нажимая на кнопку, Вы даете согласие на обработку, хранение и использование ваших персональных данных
Спасибо за заявку
Сейчас начнется скачивание каталога
Если скачивание не началось автоматически, кликните по этой ссылке


Метрополис стр.1
Москва, ш Ленинградское, 16А стр 1
Номер лота
68162
Метро
Войковская
300м
| В пределах | ||
| ТТК | МКАД | Садового |
| Нет | Да | Нет |
Район
1 206 м2
60 000 ₽ м² в год
6 030 000 ₽ в месяц




