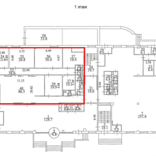
Аренда офиса площадью 346 кв.м.
Основные характеристики
- Площадь: 346 м²
- Стоимость аренды: 50 000 ₽ м² в год
- Этаж: 3 из 7
- НДС: Включая НДС
- Состояние: Готово к въезду
- Тип объекта: Офис
- Класс: B+
- Высота потолков: Неизвестно
- Планировка: Смешанная
- Комунальные услуги: Включены, кроме эл. энергии
- Тип сделки: Прямая аренда
Об оъекте
2012год основания
7этажей
B+класс офисов
На карте
Показывать объекты рядомПроложить маршрут
Фотогалерея
Скачать PDF с полной информацией об объекте
Нажимая на кнопку, Вы даете согласие на обработку, хранение и использование ваших персональных данных
Спасибо за заявку
Сейчас начнется скачивание каталога
Если скачивание не началось автоматически, кликните по этой ссылке


Малый Калужский переулок 4 стр. 1
Москва, пер Малый Калужский, 4 стр 1
Номер лота
3263
Метро
Шаболовская
700м
Октябрьская
1600м
Район
346 м2
50 000 ₽ м² в год
1 441 667 ₽ в месяц












































