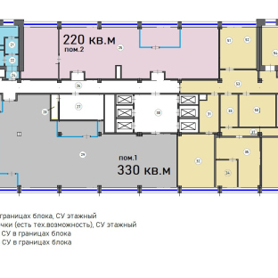
Аренда офиса площадью 330 кв.м.
Основные характеристики
- Площадь: 330 м²
- Стоимость аренды: 55 000 ₽ м² в год
- Этаж: 6 из 8
- НДС: Включая НДС
- Состояние: Готово к въезду
- Тип объекта: Офис
- Класс: B+
- Окна: Окна
- Планировка: Смешанная
- Комунальные услуги: Оплачиваются по факту
- Тип сделки: Прямая аренда
- Вход: 0
Об оъекте
2006
год основания
8
этажей
B+
класс офисов
Паркинг
Современный стиль с панорамным остеклением
Система безопасности 24/7
Высота потолков: 3,0–3,5 м
Конференц-залы
Подземная парковка
Современный стиль с панорамным остеклением
Система безопасности 24/7
Высота потолков: 3,0–3,5 м
Конференц-залы
Подземная парковкаТранспортная доступность
10 минут до Савёловского вокзала.
Аэропорт Шереметьево 35 минут на авто.
Парковка: 250 подземных мест (для арендаторов).
Метро «Дмитровская» 3 минуты пешком
5 минут до ТТКНа карте
Показывать объекты рядомПроложить маршрут
Фотогалерея
Скачать PDF с полной информацией об объекте
Нажимая на кнопку, Вы даете согласие на обработку, хранение и использование ваших персональных данных
Спасибо за заявку
Сейчас начнется скачивание каталога
Если скачивание не началось автоматически, кликните по этой ссылке


Дмитровский
Москва, ул Новодмитровская, 2Б
Номер лота
63614
Метро
Дмитровская
600м
Район
330 м2
55 000 ₽ м² в год
1 512 500 ₽ в месяц
Редеве́лопмент
Перепрофилирование невостребованных в существующем состоянии объектов недвижимости или нерационально используемых территорий
Лофт объекты - или не обычный офис
Компания «Спринтхост» взяла в субаренду часть площадей группы «Самолет» в бизнес-центре ICON
Редеве́лопмент
Перепрофилирование невостребованных в существующем состоянии объектов недвижимости или нерационально используемых территорий














































































