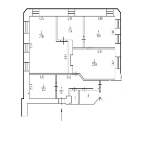
Аренда офиса площадью 133 кв.м.
Основные характеристики
- Площадь: 133 м²
- Стоимость аренды: 36 000 ₽ м² в год
- Этаж: 1 из 4
- НДС: УСН
- Состояние: Готово к въезду с
- Тип объекта: Офис
- Класс: B
- Высота потолков: Неизвестно
- Планировка: Смешанная
- Комунальные услуги: Оплачиваются по факту
- Тип сделки: Прямая аренда
Об оъекте
1916год основания
4этажей
Bкласс офисов
На карте
Показывать объекты рядомПроложить маршрут
Фотогалерея
Скачать PDF с полной информацией об объекте
Нажимая на кнопку, Вы даете согласие на обработку, хранение и использование ваших персональных данных
Спасибо за заявку
Сейчас начнется скачивание каталога
Если скачивание не началось автоматически, кликните по этой ссылке


Яузский бульвар 13 стр.3
Москва, б-р Яузский, 13 стр 3
Номер лота
66690
Метро
Китай-город
900м
Район
133 м2
36 000 ₽ м² в год
399 000 ₽ в месяц

























































