Аренда офиса площадью 551 кв.м.
Основные характеристики
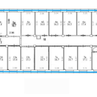
- Площадь: 551 м²
- Стоимость аренды: 25 000 ₽ м² в год
- Этаж: 1 из 4
- НДС: Включая НДС
- Состояние: Готово к въезду, требуется косметический ремонт
- Тип объекта: Офис
- Класс: C
- Высота потолков: Неизвестно
- Планировка: Смешанная
- Комунальные услуги: Оплачиваются по факту
- Тип сделки: Прямая аренда
Об оъекте
1961год основания
4этажей
Cкласс офисов
На карте
Показывать объекты рядомПроложить маршрут
Фотогалерея
Скачать PDF с полной информацией об объекте
Нажимая на кнопку, Вы даете согласие на обработку, хранение и использование ваших персональных данных
Спасибо за заявку
Сейчас начнется скачивание каталога
Если скачивание не началось автоматически, кликните по этой ссылке


Бабаевская 4
Москва, ул Бабаевская, 4
Номер лота
60969
Метро
Сокольники
700м
Район
551 м2
25 000 ₽ м² в год
1 147 917 ₽ в месяц


































