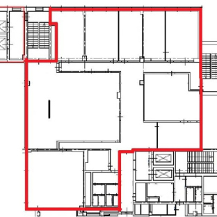
Аренда офиса площадью 527 кв.м.
Основные характеристики
- Площадь: 527 м²
- Стоимость аренды: 55 000 ₽ м² в год
- Этаж: 8 из 12
- НДС: Включая НДС
- Состояние: Готово к въезду
- Тип объекта: Офис
- Класс: B+
- Высота потолков: Неизвестно
- Планировка: Смешанная
- Комунальные услуги: Оплачиваются по факту
- Тип сделки: Прямая аренда
Об оъекте
2004год основания
12этажей
B+класс офисов
На карте
Показывать объекты рядомПроложить маршрут
Фотогалерея
Скачать PDF с полной информацией об объекте
Нажимая на кнопку, Вы даете согласие на обработку, хранение и использование ваших персональных данных
Спасибо за заявку
Сейчас начнется скачивание каталога
Если скачивание не началось автоматически, кликните по этой ссылке


Сибирь
Москва, ул Красная Пресня, 24
Номер лота
69157
Метро
Краснопресненская
500м
Район
527 м2
55 000 ₽ м² в год
2 415 417 ₽ в месяц
















