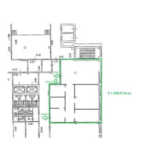
Аренда офиса площадью 157 кв.м.
Основные характеристики
- Площадь: 157 м²
- Стоимость аренды: 28 008 ₽ м² в год
- Этаж: 1 из 8
- НДС: Включая НДС
- Состояние: Готово к въезду, требуется косметический ремонт
- Тип объекта: Офис
- Класс: B+
- Окна: 0
- Планировка: Смешанная
- Комунальные услуги: Включены в АС
- Тип сделки: Прямая аренда
- Вход: 0
Об оъекте
2005
год основания
8
этажей
B+
класс офисов
Паркинг
На карте
Показывать объекты рядомПроложить маршрут
Фотогалерея
Скачать PDF с полной информацией об объекте
Нажимая на кнопку, Вы даете согласие на обработку, хранение и использование ваших персональных данных
Спасибо за заявку
Сейчас начнется скачивание каталога
Если скачивание не началось автоматически, кликните по этой ссылке


Орбита 1
Москва, ул Кулакова, 20 стр 1 к
Номер лота
63884
Метро
Строгино
700м
Мякинино
2200м
Район
157 м2
28 008 ₽ м² в год
366 438 ₽ в месяц
Редеве́лопмент
Перепрофилирование невостребованных в существующем состоянии объектов недвижимости или нерационально используемых территорий
Лофт объекты - или не обычный офис
Компания «Спринтхост» взяла в субаренду часть площадей группы «Самолет» в бизнес-центре ICON
Редеве́лопмент
Перепрофилирование невостребованных в существующем состоянии объектов недвижимости или нерационально используемых территорий
