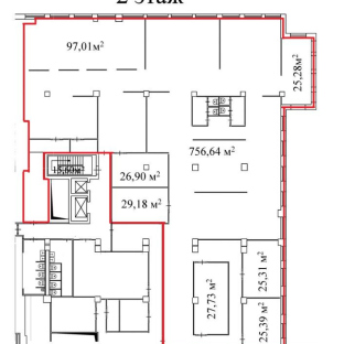
Аренда офиса площадью 1 178 кв.м.
Основные характеристики
- Площадь: 1 178 м²
- Стоимость аренды: 35 000 ₽ м² в год
- Этаж: 2 из 5
- НДС: Включая НДС
- Состояние: Готово к въезду
- Тип объекта: Офис
- Класс: B
- Окна: 0
- Планировка: Смешанная
- Комунальные услуги: Включены в АС
- Тип сделки: Прямая аренда
- Вход: 0
Об оъекте
1934
год основания
5
этажей
B
класс офисов
Паркинг
На карте
Показывать объекты рядомПроложить маршрут
Фотогалерея
Скачать PDF с полной информацией об объекте
Нажимая на кнопку, Вы даете согласие на обработку, хранение и использование ваших персональных данных
Спасибо за заявку
Сейчас начнется скачивание каталога
Если скачивание не началось автоматически, кликните по этой ссылке


НОВЬ к2
Москва, ул Нижняя Красносельская, 40/12 к 2
Номер лота
63605
Метро
Красносельская
700м
Бауманская
700м
Район
1 178 м2
35 000 ₽ м² в год
3 435 833 ₽ в месяц
Редеве́лопмент
Перепрофилирование невостребованных в существующем состоянии объектов недвижимости или нерационально используемых территорий
Лофт объекты - или не обычный офис
Компания «Спринтхост» взяла в субаренду часть площадей группы «Самолет» в бизнес-центре ICON
Редеве́лопмент
Перепрофилирование невостребованных в существующем состоянии объектов недвижимости или нерационально используемых территорий



























