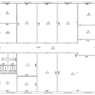
Аренда офиса площадью 323 - 323 кв.м., 3
Основные характеристики
- Площадь: 323 - 323 м²
- Стоимость аренды: 15 764 ₽ м² в год
- Этаж: 3 из 0
- НДС: УСН
- Состояние: Готово к въезду
- Тип объекта: Офис
- Класс: B
- Высота потолков: Неизвестно
- Планировка: Коридорно-кабинетная
- Комунальные услуги: Включены, кроме эл. энергии
- Тип сделки: Прямая аренда
Об оъекте
2006год основания
Bкласс офисов
На карте
Показывать объекты рядомПроложить маршрут
Фотогалерея
Скачать PDF с полной информацией об объекте
Нажимая на кнопку, Вы даете согласие на обработку, хранение и использование ваших персональных данных
Спасибо за заявку
Сейчас начнется скачивание каталога
Если скачивание не началось автоматически, кликните по этой ссылке


Водников, 2с14
Москва, ул Водников, 2 стр 14
Номер лота
49236
Метро
Спартак
700м
Тушинская
1100м
Район
323 м2
15 764 ₽ м² в год
424 314 ₽ в месяц


















