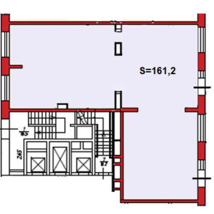
Аренда офиса площадью 161 кв.м.
Основные характеристики
- Площадь: 161 м²
- Стоимость аренды: 38 758 ₽ м² в год
- Этаж: 1 из 20
- НДС: УСН
- Состояние: Под отделку
- Тип объекта: ПСН
- Класс: B
- Окна: Витринные
- Планировка: Смешанная
- Комунальные услуги: Оплачиваются по факту
- Тип сделки: Прямая аренда
- Вход: С улицы
Об оъекте
2019
год основания
20
этажей
B
класс офисов
Паркинг
На карте
Показывать объекты рядомПроложить маршрут
Фотогалерея
Скачать PDF с полной информацией об объекте
Нажимая на кнопку, Вы даете согласие на обработку, хранение и использование ваших персональных данных
Спасибо за заявку
Сейчас начнется скачивание каталога
Если скачивание не началось автоматически, кликните по этой ссылке


Новочерёмушкинская 17
Москва, ул Новочерёмушкинская, 17
Номер лота
45541
Метро
Академическая
700м
Профсоюзная
1400м
Район
161 м2
38 758 ₽ м² в год
520 003 ₽ в месяц
Редеве́лопмент
Перепрофилирование невостребованных в существующем состоянии объектов недвижимости или нерационально используемых территорий
Лофт объекты - или не обычный офис
Компания «Спринтхост» взяла в субаренду часть площадей группы «Самолет» в бизнес-центре ICON
Редеве́лопмент
Перепрофилирование невостребованных в существующем состоянии объектов недвижимости или нерационально используемых территорий

















































