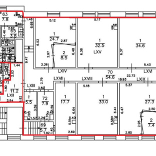
Аренда офиса площадью 359 кв.м.
Основные характеристики
- Площадь: 359 м²
- Стоимость аренды: 36 051 ₽ м² в год
- Этаж: 4 из 4
- НДС: УСН
- Состояние: Готово к въезду
- Тип объекта: Офис
- Класс: B
- Окна: 0
- Планировка: Смешанная
- Комунальные услуги: Оплачиваются по факту
- Тип сделки: Прямая аренда
- Вход: 0
Об оъекте
1875
год основания
4
этажей
B
класс офисов
Паркинг
На карте
Показывать объекты рядомПроложить маршрут
Фотогалерея
Скачать PDF с полной информацией об объекте
Нажимая на кнопку, Вы даете согласие на обработку, хранение и использование ваших персональных данных
Спасибо за заявку
Сейчас начнется скачивание каталога
Если скачивание не началось автоматически, кликните по этой ссылке


Рябовская Мануфактура
Москва, пер Холодильный, 3 к1 с4
Номер лота
62768
Метро
Тульская
310м
Шаболовская
2300м
Район
359 м2
36 051 ₽ м² в год
1 078 526 ₽ в месяц
Редеве́лопмент
Перепрофилирование невостребованных в существующем состоянии объектов недвижимости или нерационально используемых территорий
Лофт объекты - или не обычный офис
Компания «Спринтхост» взяла в субаренду часть площадей группы «Самолет» в бизнес-центре ICON
Редеве́лопмент
Перепрофилирование невостребованных в существующем состоянии объектов недвижимости или нерационально используемых территорий














