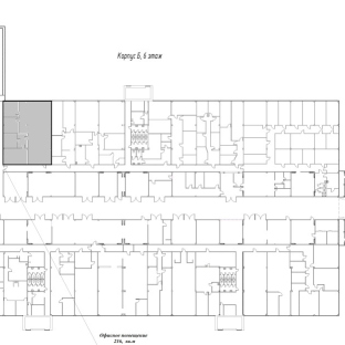
Аренда офиса площадью 216 кв.м.
Основные характеристики
- Площадь: 216 м²
- Стоимость аренды: 19 320 ₽ м² в год
- Этаж: 6 из 10
- НДС: Включая НДС
- Состояние: Готово к въезду
- Тип объекта: Офис
- Класс: B
- Высота потолков: Неизвестно
- Планировка: Смешанная
- Комунальные услуги: Оплачиваются по факту
- Тип сделки: Прямая аренда
Об оъекте
2008год основания
10этажей
Bкласс офисов
На карте
Показывать объекты рядомПроложить маршрут
Фотогалерея
Скачать PDF с полной информацией об объекте
Нажимая на кнопку, Вы даете согласие на обработку, хранение и использование ваших персональных данных
Спасибо за заявку
Сейчас начнется скачивание каталога
Если скачивание не началось автоматически, кликните по этой ссылке


Румянцево (Корпус Б)
Москва, км Киевское шоссе 22-й (п Московский), 4 стр 1 Б
Номер лота
67109
Метро
Румянцево
300м
Саларьево
1400м
Район
216 м2
19 320 ₽ м² в год
347 760 ₽ в месяц











