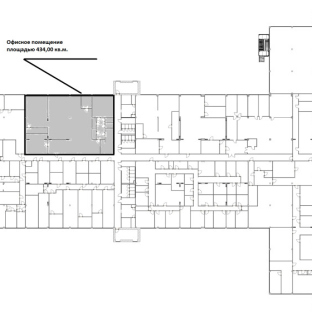
Аренда офиса площадью 434 кв.м.
Основные характеристики
- Площадь: 434 м²
- Стоимость аренды: 12 388 ₽ м² в год
- Этаж: 4 из 9
- НДС: Включая НДС
- Состояние: Готово к въезду
- Тип объекта: Офис
- Класс: B+
- Высота потолков: Неизвестно
- Планировка: Смешанная
- Комунальные услуги: Оплачиваются по факту
- Тип сделки: Прямая аренда
Об оъекте
2008год основания
9этажей
B+класс офисов
На карте
Показывать объекты рядомПроложить маршрут
Фотогалерея
Скачать PDF с полной информацией об объекте
Нажимая на кнопку, Вы даете согласие на обработку, хранение и использование ваших персональных данных
Спасибо за заявку
Сейчас начнется скачивание каталога
Если скачивание не началось автоматически, кликните по этой ссылке


Румянцево (Корпус Е)
Москва, ш Киевское, 6А стр 1
Номер лота
67114
Метро
Румянцево
300м
Саларьево
1400м
Район
434 м2
12 388 ₽ м² в год
448 033 ₽ в месяц


















