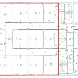
Аренда офиса площадью 415 кв.м.
Основные характеристики
- Площадь: 415 м²
- Стоимость аренды: 13 112 ₽ м² в год
- Этаж: 3 из 3
- НДС: Не включая НДС
- Состояние: Готово к въезду с
- Тип объекта: Офис
- Класс: B+
- Высота потолков: Неизвестно
- Планировка: Смешанная
- Комунальные услуги: Оплачиваются по факту
- Тип сделки: Прямая аренда
Об оъекте
2009год основания
3этажей
B+класс офисов
На карте
Показывать объекты рядомПроложить маршрут
Фотогалерея
Скачать PDF с полной информацией об объекте
Нажимая на кнопку, Вы даете согласие на обработку, хранение и использование ваших персональных данных
Спасибо за заявку
Сейчас начнется скачивание каталога
Если скачивание не началось автоматически, кликните по этой ссылке


Гринвуд
Москва, км МКАД 69-й, 31
Номер лота
68766
Метро
Планерная
6000м
Митино
6700м
Район
415 м2
13 112 ₽ м² в год
453 457 ₽ в месяц


















































