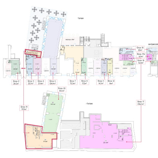
Аренда офиса площадью 199 кв.м.
Основные характеристики
- Площадь: 199 м²
- Стоимость аренды: 91 837 ₽ м² в год
- Этаж: -3 из 3
- НДС: Включая НДС
- Состояние: Под отделку
- Тип объекта: ПСН
- Класс: B
- Окна: 0
- Планировка: Смешанная
- Комунальные услуги: Оплачиваются по факту
- Тип сделки: Прямая аренда
- Вход: 0
Об оъекте
Неизвестно
год основания
3
этажей
B
класс офисов
Паркинг
На карте
Показывать объекты рядомПроложить маршрут
Фотогалерея
Скачать PDF с полной информацией об объекте
Нажимая на кнопку, Вы даете согласие на обработку, хранение и использование ваших персональных данных
Спасибо за заявку
Сейчас начнется скачивание каталога
Если скачивание не началось автоматически, кликните по этой ссылке


Солянка, 2/6
Москва, ул Солянка, 2/6
Номер лота
58125
Метро
Китай-город
200м
Район
199 м2
91 837 ₽ м² в год
1 522 964 ₽ в месяц
Редеве́лопмент
Перепрофилирование невостребованных в существующем состоянии объектов недвижимости или нерационально используемых территорий
Лофт объекты - или не обычный офис
Компания «Спринтхост» взяла в субаренду часть площадей группы «Самолет» в бизнес-центре ICON
Редеве́лопмент
Перепрофилирование невостребованных в существующем состоянии объектов недвижимости или нерационально используемых территорий
















































