Аренда офиса площадью 720 - 720 кв.м., Здание целиком
Основные характеристики
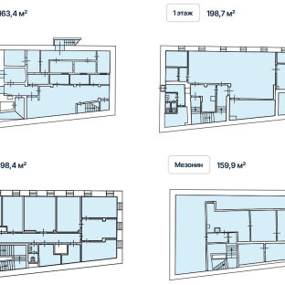
- Площадь: 720 - 720 м²
- Стоимость аренды: 41 667 ₽ м² в год
- Этаж: Здание целиком из 3
- НДС: Не включая НДС
- Состояние: Готово к въезду
- Тип объекта: Офис
- Класс: C
- Высота потолков: Неизвестно
- Планировка: Смешанная
- Комунальные услуги: Оплачиваются по факту
- Тип сделки: Прямая аренда
Об оъекте
1840год основания
3этажей
Cкласс офисов
На карте
Показывать объекты рядомПроложить маршрут
Скачать PDF с полной информацией об объекте
Нажимая на кнопку, Вы даете согласие на обработку, хранение и использование ваших персональных данных
Спасибо за заявку
Сейчас начнется скачивание каталога
Если скачивание не началось автоматически, кликните по этой ссылке


Лубянский проезд, д 21 стр 1
Москва, проезд Лубянский, 21 стр 1
Номер лота
69020
Метро
Китай-город
100м
Район
720 м2
41 667 ₽ м² в год
2 500 020 ₽ в месяц
























