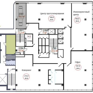
Аренда офиса площадью 158 кв.м.
Основные характеристики
- Площадь: 158 м²
- Стоимость аренды: 74 019 ₽ м² в год
- Этаж: 3 из 0
- НДС: Не включая НДС
- Состояние: Под отделку
- Тип объекта: Офис
- Класс: A
- Высота потолков: Неизвестно
- Планировка: Открытая
- Комунальные услуги: Оплачиваются по факту
- Тип сделки: Прямая аренда
Об оъекте
2026год основания
Aкласс офисов
На карте
Показывать объекты рядомПроложить маршрут
Скачать PDF с полной информацией об объекте
Нажимая на кнопку, Вы даете согласие на обработку, хранение и использование ваших персональных данных
Спасибо за заявку
Сейчас начнется скачивание каталога
Если скачивание не началось автоматически, кликните по этой ссылке


Алкон
Москва, пер 3-й Балтийский, 5
Номер лота
68472
Метро
Красный Балтиец
300м
Сокол
1100м
Район
158 м2
74 019 ₽ м² в год
974 584 ₽ в месяц
