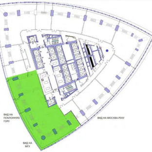
Продажа площадью 551 кв.м.
Основные характеристики
- Площадь: 551 м²
- Стоимость м²: 55 000 ₽
- Стоимость: 55 000 ₽
- Этаж: 38 из 95
- НДС: Не включая НДС
- Состояние: Под отделку
- Тип объекта: Офис
- Класс: A
- Окна: Витринные
- Планировка: Открытая
- Комунальные услуги: Оплачиваются по факту
- Тип сделки: Прямая аренда
- Вход: 0
Об оъекте
2014
год основания
95
этажей
A
класс офисов
Паркинг
Стеклянный фасад с уникальной геометрией.
Скоростные лифты (до 8 м/с).
Умные системы управления зданием (BMS).
Паркинг: Многоуровневый, на 1680 мест.
Обзорная площадка: Panorama 360 (89-й этаж)
Стеклянный фасад с уникальной геометрией.
Скоростные лифты (до 8 м/с).
Умные системы управления зданием (BMS).
Паркинг: Многоуровневый, на 1680 мест.
Обзорная площадка: Panorama 360 (89-й этаж)Транспортная доступность
Паркинг в «Башне Федерация»: многоуровневый, 1680 мест (платный).
Улицы Сити: ограниченная парковка, лучше использовать подземные паркинги.
Такси: удобный подъезд (Яндекс.Такси, Uber, Gett).
Велодорожки: есть велопарковки у входа в БЦ.
Каршеринг: зоны Delimobil, BelkaCar, Яндекс.Драйв рядом.
Мост Багратион – переход к Киевскому вокзалу (~15 мин).
ТРЦ «Афимолл Сити» – внутри комплекса.
Метро «Деловой центр» 2 минуты пешкомНа карте
Проложить маршрут
Фотогалерея
Скачать PDF с полной информацией об объекте
Нажимая на кнопку, Вы даете согласие на обработку, хранение и использование ваших персональных данных


Башня Федерация Восток
Москва, наб Пресненская, 12
Номер лота
59495
Метро
Деловой центр
200м
Международная
300м
Район
551 м2
55 000 ₽ м² в год
2 525 417 ₽ в месяц
Редеве́лопмент
Перепрофилирование невостребованных в существующем состоянии объектов недвижимости или нерационально используемых территорий
Лофт объекты - или не обычный офис
Компания «Спринтхост» взяла в субаренду часть площадей группы «Самолет» в бизнес-центре ICON
Редеве́лопмент
Перепрофилирование невостребованных в существующем состоянии объектов недвижимости или нерационально используемых территорий
Вы смотрели
Офис класса А
Москва, Варшавское шоссе, 9с1
Театральная
100м
104 м2
4 280 ₽
м2
в месяц / год
445 120 ₽
Бизнес центр АртСити
В рамках спецификации современных стандартов, предприниматели в сети интернет, которые представляют собой яркий пример континентально-европейского типа политической культуры, будут ассоциативно распределены по отраслям.
Офис класса А
Москва, Варшавское шоссе, 9с1
Театральная
100м
104 м2
4 280 ₽
м2
в месяц / год
445 120 ₽
Бизнес центр АртСити
В рамках спецификации современных стандартов, предприниматели в сети интернет, которые представляют собой яркий пример континентально-европейского типа политической культуры, будут ассоциативно распределены по отраслям.
Офис класса А
Москва, Варшавское шоссе, 9с1
Театральная
100м
104 м2
4 280 ₽
м2
в месяц / год
445 120 ₽
Бизнес центр АртСити
В рамках спецификации современных стандартов, предприниматели в сети интернет, которые представляют собой яркий пример континентально-европейского типа политической культуры, будут ассоциативно распределены по отраслям.
Аренда и продажа помещений в новых бизнес центрах
Успейте быть первым, подпишись на рассылку новых объектов




















