Продажа площадью 0 кв.м.
Основные характеристики
- Площадь: 0 м²
- Стоимость м²: 0 ₽
- Стоимость: 0 ₽
- Этаж: 0 из 4
- НДС: Не включая НДС
- Состояние: Готово к въезду
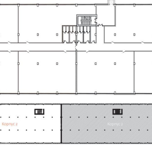
- Тип объекта: Офис
- Класс: B+
- Окна: 0
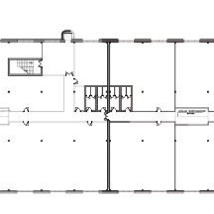
- Планировка: Смешанная
- Комунальные услуги: Оплачиваются по факту
- Тип сделки: Прямая аренда
- Вход: 0
Об оъекте
2008
год основания
4
этажей
B+
класс офисов
Паркинг
Панорамное остекление с солнцезащитными системами
Высота потолков: 3,2–3,7 м
Центральное кондиционирование (VRV)
Гибкие планировки (open space, кабинеты)
Круглосуточная охрана
Панорамное остекление с солнцезащитными системами
Высота потолков: 3,2–3,7 м
Центральное кондиционирование (VRV)
Гибкие планировки (open space, кабинеты)
Круглосуточная охранаТранспортная доступность
7 минут до Третьего транспортного кольца (ТТК).
15 минут до центра Москвы (без пробок).
Парковка: наземная (100 мест).
Метро «Площадь Ильича» 7 минут пешком
2 минуты до шоссе ЭнтузиастовНа карте
Проложить маршрут
Фотогалерея
Скачать PDF с полной информацией об объекте
Нажимая на кнопку, Вы даете согласие на обработку, хранение и использование ваших персональных данных


Новорогожский
Москва, ул Рабочая, 93
Номер лота
46661
Метро
Площадь Ильича
0м
Римская
0м
Район
13 540 м2
0 ₽ м² в год
0 ₽ в месяц
Редеве́лопмент
Перепрофилирование невостребованных в существующем состоянии объектов недвижимости или нерационально используемых территорий
Лофт объекты - или не обычный офис
Компания «Спринтхост» взяла в субаренду часть площадей группы «Самолет» в бизнес-центре ICON
Редеве́лопмент
Перепрофилирование невостребованных в существующем состоянии объектов недвижимости или нерационально используемых территорий
Вы смотрели
Офис класса А
Москва, Варшавское шоссе, 9с1
Театральная
100м
104 м2
4 280 ₽
м2
в месяц / год
445 120 ₽
Бизнес центр АртСити
В рамках спецификации современных стандартов, предприниматели в сети интернет, которые представляют собой яркий пример континентально-европейского типа политической культуры, будут ассоциативно распределены по отраслям.
Офис класса А
Москва, Варшавское шоссе, 9с1
Театральная
100м
104 м2
4 280 ₽
м2
в месяц / год
445 120 ₽
Бизнес центр АртСити
В рамках спецификации современных стандартов, предприниматели в сети интернет, которые представляют собой яркий пример континентально-европейского типа политической культуры, будут ассоциативно распределены по отраслям.
Офис класса А
Москва, Варшавское шоссе, 9с1
Театральная
100м
104 м2
4 280 ₽
м2
в месяц / год
445 120 ₽
Бизнес центр АртСити
В рамках спецификации современных стандартов, предприниматели в сети интернет, которые представляют собой яркий пример континентально-европейского типа политической культуры, будут ассоциативно распределены по отраслям.
Аренда и продажа помещений в новых бизнес центрах
Успейте быть первым, подпишись на рассылку новых объектов




