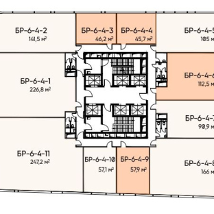
Продажа площадью 226 кв.м.
Основные характеристики
- Площадь: 226 м²
- Стоимость м²: 0 ₽
- Стоимость: 0 ₽
- Этаж: 6 из 13
- НДС: Не включая НДС
- Состояние: Под отделку
- Тип объекта: Офис
- Класс: A
- Окна: Витринные
- Планировка: Открытая
- Комунальные услуги: Оплачиваются по факту
- Тип сделки: Прямая аренда
- Вход: 0
Об оъекте
2026
год основания
13
этажей
A
класс офисов
Паркинг
На карте
Проложить маршрут
Фотогалерея
Скачать PDF с полной информацией об объекте
Нажимая на кнопку, Вы даете согласие на обработку, хранение и использование ваших персональных данных


Башня Рябов
Москва, пер Холодильный, 3 к 1
Номер лота
8518
Метро
Тульская
300м
Шаболовская
1600м
Район
226 м2
0 ₽ м² в год
0 ₽ в месяц
Редеве́лопмент
Перепрофилирование невостребованных в существующем состоянии объектов недвижимости или нерационально используемых территорий
Лофт объекты - или не обычный офис
Компания «Спринтхост» взяла в субаренду часть площадей группы «Самолет» в бизнес-центре ICON
Редеве́лопмент
Перепрофилирование невостребованных в существующем состоянии объектов недвижимости или нерационально используемых территорий
Вы смотрели
Офис класса А
Москва, Варшавское шоссе, 9с1
Театральная
100м
104 м2
4 280 ₽
м2
в месяц / год
445 120 ₽
Бизнес центр АртСити
В рамках спецификации современных стандартов, предприниматели в сети интернет, которые представляют собой яркий пример континентально-европейского типа политической культуры, будут ассоциативно распределены по отраслям.
Офис класса А
Москва, Варшавское шоссе, 9с1
Театральная
100м
104 м2
4 280 ₽
м2
в месяц / год
445 120 ₽
Бизнес центр АртСити
В рамках спецификации современных стандартов, предприниматели в сети интернет, которые представляют собой яркий пример континентально-европейского типа политической культуры, будут ассоциативно распределены по отраслям.
Офис класса А
Москва, Варшавское шоссе, 9с1
Театральная
100м
104 м2
4 280 ₽
м2
в месяц / год
445 120 ₽
Бизнес центр АртСити
В рамках спецификации современных стандартов, предприниматели в сети интернет, которые представляют собой яркий пример континентально-европейского типа политической культуры, будут ассоциативно распределены по отраслям.
Аренда и продажа помещений в новых бизнес центрах
Успейте быть первым, подпишись на рассылку новых объектов
