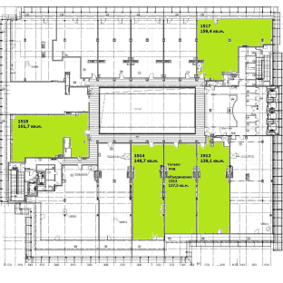
Продажа офиса площадью 426 кв.м.
Основные характеристики
- Площадь: 426 м²
- Стоимость м²: 1 500 000 ₽
- Стоимость: 639 000 000 ₽
- Этаж: 12 эт из 12
- НДС: Не включая НДС
- Состояние: Под отделку
- Тип объекта: Офис
- Класс: A
- Высота потолков: Неизвестно
- Планировка: Смешанная
- Комунальные услуги: Оплачиваются по факту
- Тип сделки: Прямая аренда
- Вход: 0
Характеристики объекта
- ПровайдерКоммерческий провайдер
- ВентиляцияПриточно-вытяжная
- КондиционированиеЦентральное
- ПарковкаПодземная
- Дата реконструкцииНеизвестно
- ОхранаКруглосуточная охрана здания
Инфраструктура рядом: Кафе, Бар, Магазин
Об оъекте
2019год основания
12этажей
Aкласс офисов
На карте
Проложить маршрут
Фотогалерея
Скачать PDF с полной информацией об объекте
Нажимая на кнопку, Вы даете согласие на обработку, хранение и использование ваших персональных данных


Панорама
Москва, ул 2-я Брестская, 6
Номер лота
66618
Метро
Маяковская
300м
Белорусская
700м
Район
426 м2
639 000 000 ₽
1 500 000 ₽ за м²










