Продажа офиса площадью 516 кв.м.
Основные характеристики
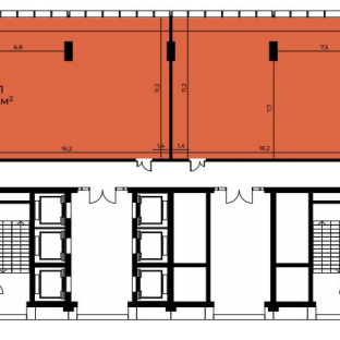
- Площадь: 516 м²
- Стоимость м²: 605 302 ₽
- Стоимость: 312 335 832 ₽
- Этаж: 4 из 30
- НДС: Не включая НДС
- Состояние: Под отделку
- Тип объекта: Офис
- Класс: A
- Высота потолков: Неизвестно
- Планировка: Открытая
- Комунальные услуги: Оплачиваются по факту
- Тип сделки: Прямая аренда
- Вход: 0
Характеристики объекта
- ВентиляцияПриточно-вытяжная
- КондиционированиеСплит-системы
- ПарковкаПодземная
- Дата реконструкцииНеизвестно
- ОхранаКруглосуточная охрана здания
Инфраструктура рядом: Цветы, Аптека, Магазин
Об оъекте
2027год основания
30этажей
Aкласс офисов
На карте
Проложить маршрут
Фотогалерея
Скачать PDF с полной информацией об объекте
Нажимая на кнопку, Вы даете согласие на обработку, хранение и использование ваших персональных данных


ФРАМ
Москва, ул Пресненский Вал, 27 стр 5
Номер лота
68387
Метро
Белорусская
500м
Район
516 м2
312 335 832 ₽
605 302 ₽ за м²
