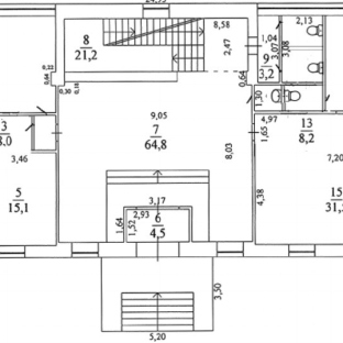
Продажа площадью 238 кв.м.
Основные характеристики
- Площадь: 238 м²
- Стоимость м²: 30 000 ₽
- Стоимость: 30 000 ₽
- Этаж: 1 из 12
- НДС: Включая НДС
- Состояние: Готово к въезду
- Тип объекта: Офис
- Класс: A
- Окна: 0
- Планировка: Смешанная
- Комунальные услуги: Включены в АС
- Тип сделки: Прямая аренда
- Вход: 0
Об оъекте
2027
год основания
12
этажей
A
класс офисов
Паркинг
На карте
Проложить маршрут
Фотогалерея
Скачать PDF с полной информацией об объекте
Нажимая на кнопку, Вы даете согласие на обработку, хранение и использование ваших персональных данных


Прокшино
Москва, №35 квартал, 10 корп. 3
Номер лота
60245
Метро
Прокшино
800м
Филатов Луг
1500м
Район
238 м2
30 000 ₽ м² в год
595 000 ₽ в месяц
Редеве́лопмент
Перепрофилирование невостребованных в существующем состоянии объектов недвижимости или нерационально используемых территорий
Лофт объекты - или не обычный офис
Компания «Спринтхост» взяла в субаренду часть площадей группы «Самолет» в бизнес-центре ICON
Редеве́лопмент
Перепрофилирование невостребованных в существующем состоянии объектов недвижимости или нерационально используемых территорий
Вы смотрели
Офис класса А
Москва, Варшавское шоссе, 9с1
Театральная
100м
104 м2
4 280 ₽
м2
в месяц / год
445 120 ₽
Бизнес центр АртСити
В рамках спецификации современных стандартов, предприниматели в сети интернет, которые представляют собой яркий пример континентально-европейского типа политической культуры, будут ассоциативно распределены по отраслям.
Офис класса А
Москва, Варшавское шоссе, 9с1
Театральная
100м
104 м2
4 280 ₽
м2
в месяц / год
445 120 ₽
Бизнес центр АртСити
В рамках спецификации современных стандартов, предприниматели в сети интернет, которые представляют собой яркий пример континентально-европейского типа политической культуры, будут ассоциативно распределены по отраслям.
Офис класса А
Москва, Варшавское шоссе, 9с1
Театральная
100м
104 м2
4 280 ₽
м2
в месяц / год
445 120 ₽
Бизнес центр АртСити
В рамках спецификации современных стандартов, предприниматели в сети интернет, которые представляют собой яркий пример континентально-европейского типа политической культуры, будут ассоциативно распределены по отраслям.
Аренда и продажа помещений в новых бизнес центрах
Успейте быть первым, подпишись на рассылку новых объектов




