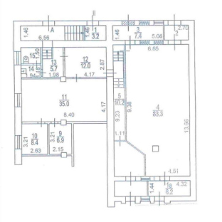
Продажа здания целиком площадью 349 кв.м.
Основные характеристики
- Площадь: 349 м²
- Стоимость м²: 250 000 ₽
- Стоимость: 87 250 000 ₽
- Этаж: Здание целиком из 2
- НДС: Не включая НДС
- Состояние: Готово к въезду
- Тип объекта: Офис
- Класс: B
- Высота потолков: Неизвестно
- Планировка: Смешанная
- Комунальные услуги: Оплачиваются по факту
- Тип сделки: Прямая аренда
- Вход: 0
Характеристики объекта
- ПровайдерКоммерческие провайдеры
- ВентиляцияПриточно-вытяжная
- КондиционированиеСплит-системы
- ПарковкаНет
- Дата реконструкцииНеизвестно
- ОхранаКруглосуточная охрана здания
Инфраструктура рядом:
Об оъекте
1895год основания
2этажей
Bкласс офисов
На карте
Проложить маршрут
Фотогалерея
Скачать PDF с полной информацией об объекте
Нажимая на кнопку, Вы даете согласие на обработку, хранение и использование ваших персональных данных


Бакунинская ул., 84
Москва, ул Бакунинская, 84
Номер лота
60452
Метро
Электрозаводская
700м
Район
349 м2
87 250 000 ₽
250 000 ₽ за м²














